20 Yew Lane

Sheffield, South Yorkshire, S5 9AN

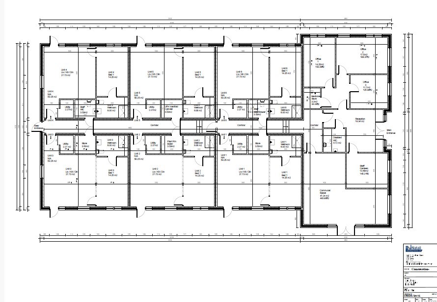
The property is currently being developed by Weiston Developments a well funded and establsihed developer and should achieve practical completion in October 2025. Formerly operating as The Players Lounge, a private club and leisure venue (recently demolished), the site is now has planning consent (Ref:23/01850/Ful) for redevelopment into a single-storey care home (Use Class C2) comprising: 6 high-quality residential apartments A communal lounge, staff offices & training room Ancillary amenity and parking areas The property will be let to Bespoke Care & Support Limited at £176,000 per annum on a new 30-year lease with RPI rent reviews every 5 years (with no cap or collar) and no lease break (example lease available on request). COVENANT Bespoke Care & Support Limited, are a care company specialising in Transformative Care for over 18-year-olds who have severe learning disabilities or personality disorders. They have been trading since 2019. Thelma Turner is the CEO who has vast experience in this sector and in the 1990s she was CEO of a company which had 28 homes. The average fee per resident in the existing two homes is around £8,500 per week. The company shows a profit before tax of £831,000 in the last set of accounts (2024) on a turnover of £5.4m (P&L for 2024 and 2023 available on request). PRICE We are instructed to receive offers in the region of £2,500,000 (TWO MILLION FIVE HUNDRED THOUSAND POUNDS) an offer at this level reflects a Net Initial Yield of 6.64% (after pruchasers costs of 6.08%). AML In accordance with the Money Laundering Regulations prospective purchasers will be asked to produce identification of the intended purchaser and other documentation to support any offers submitted to the vendors.

Details

Type Investment Tenure Freehold £2,500,000 Location East Ecclesfield Size 4341.00 Sq Ft ( 403.3 Sq M)

Highlights

  • New 30 year lease
  • RPI rent reviews every 5 years
  • Let to an established care operator
  • Planning consent granted
X
Discover...
Sheffield Inspires Logo
x