Park Hill

Units 3 & 4 , South Street, Sheffield, South Yorkshire, S2 5QX

Park Hill is a Brutalist, concrete icon, and the largest listed building in Europe. Standing proudly at the top of hill overlooking Sheffield city centre, Park Hill was a utopian vision, created in 1961 to create a new community for families. Its distinctive 'streets in the sky' were places in which families congregated and life thrived. Key to Urban Splash is the creation of "a community" at Park Hill. Part of this is having great people in the workspaces such as The Pearl, South Street Kitchen, the Grace Owen Nursery, Human, Warp Films, Airship, Alpha Recruitment, Content OD, Pukator, Kada Research, AAD Architects, Can Studios, 12 Miles North and Hive IT. Park Hill also proudly accommodates the social enterprise, S1 Art Gallery. This subject office has been fitted out to a very modern standard and is ready for any Tenant to occupy immediately.

Details

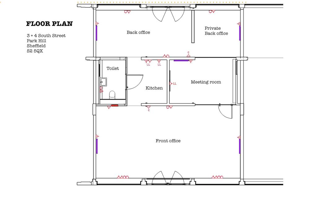
Type Office Tenure Leasehold £20,000 Per Annum Location City Size 1135.00 Sq Ft ( 105.4 Sq M)

Highlights

  • Let us show you around and we promise you will be impressed!
  • Fully fitted ready for immediate occupation
  • Cutting edge Brutalist design
X
Discover...
Sheffield Inspires Logo
x